The Contura 130 wood burning stove is a compact, efficient heating solution designed to suit a wide range of interiors, from modern homes to traditional cottages. With its clean-lined aesthetic and 5 kW output, it delivers reliable warmth while maintaining a small footprint.
Built around the proven firebox of the Contura 110, this model focuses on simplicity, efficiency, and flexibility. Its compact dimensions make it easy to position in smaller rooms or tighter fireplace openings, while still offering enough output to heat spaces up to 120 m².
The optional matching log box enhances both function and design, raising the stove to a more ergonomic height while providing practical log storage beneath. This not only improves usability but also creates a more complete, furniture-style installation.
With an efficiency rating of 80% and an A energy class, the stove is designed to make the most of each log, delivering consistent heat while reducing fuel consumption.
Key Features
- 5 kW heat output
- Heats up to 120 m²
- 80% efficiency rating
- Compact freestanding design
- Optional integrated log box
- Top flue connection
- Burns logs up to 30 cm
- A-rated efficiency class
- Black finish
Suitability
Well suited to smaller living spaces, open-plan rooms, cottages, and conservatories where a compact yet effective heat source is required. Ideal for installations where space is limited but performance and clean design are still priorities.
Installation / Technical Notes
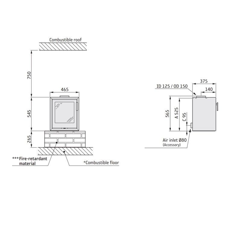
Designed for connection via a top flue outlet. Its compact size (545 mm height, 465 mm width, 375 mm depth) allows for flexible installation in a variety of settings. Weighing 75 kg, it is relatively straightforward to position compared to larger stoves, while still requiring appropriate hearth and clearance considerations.
Log Box Example:
Transform the Cntura 130 with the log box accessory. This raises the height of the 130 and allows logs to be stored underneath,

Accessory Examples:



Reviews
There are no reviews yet.